Floris Residence presenteert een royale nog te realiseren dubbel laagse bovenwoning met balkon en ruim dakterras op een toplocatie in Amstelveen, nabij Amsterdam.
Deze woning maakt onderdeel uit van een exclusief renovatieproject waarbij een bestaande woning wordt getransformeerd tot twee hoogwaardige woningen. Hierbij staan comfort, ruimte, lichtinval en flexibiliteit centraal.
Het betreft een licht en ruim dubbel bovenhuis van circa 110 m² woonoppervlakte, verdeeld over de eerste en tweede verdieping. Dankzij de slimme indeling ontstaat een comfortabele leefomgeving met royale woonkamer, meerdere slaapkamers en aantrekkelijke buitenruimtes.
De woning is bijzonder geschikt voor stellen, gezinnen, professionals, expats of investeerders die zoeken naar ruimte op korte afstand van Amsterdam.
Flexibele aankoopmogelijkheden
Het project wordt aangeboden met meerdere aankoopopties:
• Turn-key oplevering (in overleg, volledig afgewerkt)
• Casco oplevering (naar eigen wens af te bouwen)
• Projectovername
Bij projectovername wordt geleverd inclusief:
• Volledige bouwtekeningen
• Verleende vergunning(en)
• Sonderingsrapport
• Bodemonderzoek
• Constructieberekeningen
• Installatie- en leidingplannen
👉 Ideaal voor kopers die zelf willen ontwikkelen, optimaliseren of investeren.
Indeling
1e verdieping
• Royale woonkamer ca. 42,67 m²
• Slaapkamer ca. 11,10 m²
• Badkamer
• Separaat toilet
• Kleedkamer / inloopruimte
• Entree / hal
• Technische ruimte
• Portiek
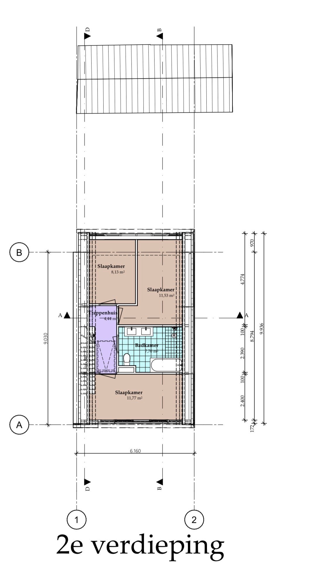
2e verdieping
• Slaapkamer 1 ca. 11,77 m²
• Slaapkamer 2 ca. 11,53 m²
• Slaapkamer 3 ca. 8,13 m²
• Royale badkamer ca. 8,14 m²
• Overloop
Buitenruimte
• Balkon ca. 6,98 m²
• Dakterras ca. 22,61 m²
Bijzonderheden
• Nog te realiseren renovatieproject
• Ca. 110 m² woonoppervlakte
• Dubbele woonlaag (1e + 2e verdieping)
• 3–4 slaapkamers mogelijk
• Balkon en royaal dakterras
• Volledig naar eigen wens af te werken
• Zonnepanelen en sedumdak
• Zeer geschikt voor eigen bewoning, expat verhuur of investering
Parkeren & Extra’s
• Goede parkeermogelijkheden
• Mogelijkheid tot eigen laadpunten voor elektrische auto’s
• Optioneel: externe berging en/of garagebox beschikbaar
Ligging
Gelegen aan de Graaf Florislaan in een rustige en verzorgde woonwijk in Amstelveen, op korte afstand van Amsterdam.
• Populair bij jonge gezinnen en professionals
• Veilige en prettige leefomgeving
• Nabij het Amsterdamse Bos
• Winkels, horeca en supermarkten dichtbij
• Internationale scholen en universiteiten in de omgeving
• Snelle verbinding naar Amsterdam
• Goede aansluiting op A9 en A10
• Openbaar vervoer nabij
Interesse?
Bent u geĂŻnteresseerd in deze unieke woning of wilt u meer weten over de mogelijkheden?
👉 Vraag vrijblijvend meer informatie aan
👉 Ontvang de volledige projectdocumentatie en plannen op aanvraag
👉 Bespreek de verschillende aankoopopties (turn-key, casco of projectovername)
👉 Plan eenvoudig een kennismakingsgesprek of informatiegesprek
Klik op de knop of neem contact met ons op, wij helpen u graag verder.
⸻
🇬🇧 Floris Residence – Exclusive Duplex Upper Residence with Balcony & Roof Terrace in Amstelveen near Amsterdam
🏡 Residence 2 – Duplex Upper Residence (approx. 110 m²)
📍 Graaf Florislaan, Amstelveen
đź’° Asking price: On request
Available for Sale and Rent
This property is available for both purchase and rental. Please feel free to contact us for the current possibilities and conditions.
Floris Residence presents a spacious newly planned duplex upper residence with balcony and generous roof terrace in a prime location in Amstelveen, near Amsterdam.
This residence forms part of an exclusive renovation project in which an existing building is transformed into two high-quality homes, focused on comfort, space, natural light and flexibility.
The property offers approximately 110 m² of living space, divided over the first and second floor. Its smart layout creates a comfortable living environment with a spacious living room, multiple bedrooms and attractive outdoor spaces.
The residence is highly suitable for couples, families, professionals, expats or investors looking for space close to Amsterdam.
Flexible Purchase Options
The project is offered with multiple purchase possibilities:
• Turn-key delivery (fully finished in consultation)
• Shell delivery (finish to your own preference)
• Project takeover
With project takeover, the buyer receives:
• Full architectural drawings
• Approved permits
• Soil testing reports
• Ground research
• Structural calculations
• Installation and technical plans
👉 Ideal for buyers looking to develop, customize or invest.
Layout
First Floor
• Spacious living room approx. 42.67 m²
• Bedroom approx. 11.10 m²
• Bathroom
• Separate toilet
• Dressing room / walk-in area
• Entrance / hallway
• Technical room
• Landing
Second Floor
• Bedroom 1 approx. 11.77 m²
• Bedroom 2 approx. 11.53 m²
• Bedroom 3 approx. 8.13 m²
• Spacious bathroom approx. 8.14 m²
• Landing
Outdoor Space
• Balcony approx. 6.98 m²
• Roof terrace approx. 22.61 m²
Highlights
• Newly planned renovation project
• Approx. 110 m² living space
• Two residential floors (1st + 2nd floor)
• 3–4 bedrooms possible
• Balcony and generous roof terrace
• Finish fully to your own preference
• Solar panels and green sedum roof
• Highly suitable for owner occupation, expat rental or investment
Parking & Extras
• Good parking possibilities
• Possibility for private EV charging points
• Optional external storage and/or garage box available
Location
Located on Graaf Florislaan in a quiet and well-kept residential area of Amstelveen, a short distance from Amsterdam.
• Popular with young families and professionals
• Safe and pleasant living environment
• Near Amsterdam Forest
• Shops, restaurants and supermarkets nearby
• International schools and universities nearby
• Fast connection to Amsterdam
• Good access to A9 and A10
• Public transport nearby
Interested?
Are you interested in this unique property or would you like to learn more about the possibilities?
👉 Request more information without obligation
👉 Receive the full project documentation and plans upon request
👉 Discuss the different purchase options (turn-key, shell or project takeover)
👉 Easily schedule an introduction or information call
Click the button or get in touch, we’re happy to assist you.